Villa ‘Gudrun’,
de woning van Dr. R. De Beir met modernistische interieurs (1920-1926)
Het artistiek partnerschap van architect Huib Hoste en kunstschilder Victor Servranckx
Paul B. Mattelaer
met de medewerking van Danny Lannoy, Voorzitter van 'Cnocke is Hier', Jos Vandenbreeden, Bestuurder Stichting CIVA, Brussel en van Architect Vincent De Beir.
Vooraf
De aanleiding van deze publicatie is de ontdekking van de akte van de bouwvergunning van de villa/rijhuis van Dr. Reimond De Beir door de heer Danny Lannoy en onlangs ontdekte familiefoto’s van de eetplaats en zitplaats van deze woning.
Inleiding
Dr. Reimond De Beir vestigde zich als huisarts in Westkapelle na zijn promotie als arts in 1905 en huwde Bertha Baervoets op 11 juni 1908. Ze woonden in een statige woning, gebouwd met de steun van zijn schoonmoeder, de rijke weduwe van de Heistse hotelier Charles Baervoets. Hun eerste kind, een zoon, zag daar het levenslicht (1) Door de opkomst van Knokke als badstad, hield Dr. De Beir ook daar consultaties en deed er bevallingen. Zo werd zijn tweede kind, een dochter, te Knokke geboren in 1911.
Hij had dan ook de intentie om in Knokke te gaan wonen. In 1910 kocht hij een stuk bouwgrond in de Lippenslaan. Op 14 maart 1910 verkreeg hij een bouwvergunning. (2) De woning zal enkele jaren later worden gebouwd. Gezien zijn derde kind er op 1 juni 1914 werd geboren, werd het rijhuis waarschijnlijk rond 1912 gebouwd. (3)
Als Vlaamsgezinde noemde hij de woning ‘Villa Gudrun’ naar het gelijknamige toneelstuk van Albrecht Rodenbach.(4) Zijn woning in Westkapelle werd verkocht aan Dr. Aernoudts. Hij bleef in de villa wonen tot op het einde van 1926, toen hij verhuisde naar het merkwaardige ‘Het Zwarte Huis’.(5)
Afb.1. De Lippenslaan rond het begin van de 20s,e eeuw.
De rijhuizen werden toen Villa’s' genoemd. © Danny Lannoy
De Groote Oorlog en de ontdekking van het Modernisme
Na het uitbreken van de Eerste Wereldoorlog in augustus vluchtte Dr. De Beir in september met zijn familie naar Soesterberg in Nederland. Ook zijn vriend architect Huib Hoste verbleef daar met zijn familie (6) Op zondag fietsten beide families in de mooie streek rondom Zeist, Soesterberg en Amersfoort. In het voorjaar van 1917, op één van die fietstochten, toonde Hoste aan Dr. De Beir een ongewoon modern huis, het landhuis “Ter Heide” van Rob van 't Hoff. Dr. De Beir, die openstond voor alle avant-garde-kunst, was zeer onder de indruk van deze woning in beton.(7)
Huib Hoste en ‘De Stijl’
De ideoloog van de deze ‘Nieuwe beelding’, ook neoplasticisme genoemd, was Theo van Doesburg (1883-1931). In 1916 richtte hij de beweging ‘De Stijl’ op met een gelijknamig tijdschrift. Het eerste nummer verscheen in oktober 1917 met een bijdrage van Huib Hoste: De roeping der moderne architectuur. Op 29 juni 1918 publiceerde Hoste in De Nieuwe Amsterdammer, een artikel ‘Een kinderkapel’. Daarin verdedigde Hoste, als katholiek, dat gestileerde figuratieve afbeeldingen thuishoorden in katholieke kerken. Op 6 juli 1918 liet Van Doesburg in dezelfde krant een Open Brief aan den architect Huib Hoste, publiceren met een hevige kritiek op het artikel van Hoste.
Hij verwijt Hoste dat hij in zijn artikel in ‘De Stijl’ niet vermeld had dat hij katholiek was, het verfoeide eclectisme en soepele lijnen toeliet, hetgeen juist verbannen moest worden. Dit is Iskariotherie. Dat Hoste aldus met twee monden spreekt... en verraad pleegt aan de beginselen der Nieuwe Beelding. Hoste antwoordt in dezelfde krant dat hij voor het verschijnen van De Stijl en zijn kennismaking met Van Doesburg reeds het modernistische ’Belgenmonument’ had laten bouwen en dat Van Doesburg het gebouw op een reproductie prachtig vond. Hoste benadrukte tevens dat hij het manifest van ‘De Stijl’ niet had ondertekend omwille van het antigodsdienstig karakter.
Afb.2. Kaft van het eerste nummer van 'De Stijl',
© Fonds Huib Hoste, Sint-Lukasarchief - Stichting CIVA Brussel.
De breuk tussen Van Doesburg en Hoste was totaal en Hoste mocht niet meer publiceren in ‘De Stijl’. Katholicisme versus calvinisme. Hoste bleef echter trouw aan de doelstellingen van de beweging: verwerping van de klassieke Beeldende kunsten en architectuur Orthogonale architectuur (Nieuwe zakelijkheid), al dan niet gekleurd en bij voorkeur gebouwd in beton. Een plat dak wordt de regel. De interieurs worden ‘environmenten muren, kasten, vloeren en meubelen worden als één geheel beschouwd. (8)
Paradoxaal genoeg, de realisaties van Van Doesburg en Hoste zijn vrij gelijklopend zoals de ‘Ciné-dancing Aubette’ te Straatsburg, een ‘De Stijl- environment' van Van Doesburg.
Villa Gudrun
Deze woning, gebouwd voor de oorlog was vrij klassiek (afb.4). Aan de Lippenslaan was er naast een personen-ingang een grote poort, bestemd voor de ‘sjees’ of ‘sieze’, een tweewielig rijtuig met kap met vooraan de ‘bok’ of zitplaats voor de koetsier Jan. Later verhuisde Jan naar Brussel. Tijdens de koude winterdagen had in de ‘sieze’ een komfoortje met warme kolen en ook een fles wijn.(9)
De ‘sieze’ werd al vlug vervangen door een ‘automobiel’. Achter het koetshuis was er plaats voor de koetsier en het paard. Meer achteraan lagen de eetplaats met zitplaats en helemaal achteraan de keuken. De eetplaats en zitplaats waren gescheiden door een klein muurtje dat later werd afgebroken.
Boven de benedenverdieping telde de woning drie verdiepingen. De eerste verdieping was bestemd voor de medische praktijk, met vooraan zijn bureau voor ontvangst van de patiënten. Daarnaast lag de onderzoekskamer.(10) De twee hoogste verdiepingen waren bestemd voor de slaapkamers van de familie en voor een badkamer.
De modernistische verbouwingen rond 1923
Huib Hoste, de oude vriend van Dr. De Beir, kon de dokter die openstond voor de avant- garde, overtuigen om twee kamers in te richten als ‘De Stijl-interieurs’. Via HuibHosteleerde De Beir Victor Servranckx kennen en hij nodigde hen uit om enkele kamers in te richten als een ‘De Stijl-environment’.

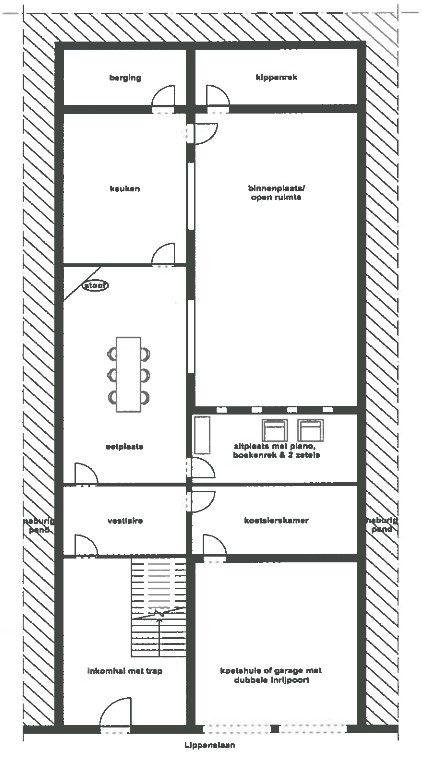
Afb.3. Approximatieve reconstructie van het grondplan.© architect Vincent De Beir
Op de benedenverdieping werden de eetplaats en het salon ingericht door Hoste en op de eerste verdieping het medisch bureau, door Servranckx met meubels van Hoste.(11) Deze modernistische ruimten betekenden een ware revolutie voor interieur-inrichtingen. Net zoals de viertal ‘De Stijl-environments’ van Hoste, de atelierflat van schilder Jozef Peeters (18951960) te Antwerpen en een interieur van Jan Cockx, waren er echter weinig navolgers in België: de breuk met het verleden was te diep.(12)
Afb.4. Foto van de woning rond 1960.
Afb.5, In de eetplaats
Afb.6-7, zitplaats met Lieve en Reimond jr. aan de piano
1. Huib Hoste: Eetplaats en zitplaats, ingericht als een ‘De Stijl-environment’.(13)
De zitplaats was toen gescheiden van de eetplaats door een muur, die later werd afgebroken. Alhoewel minder opvallend zijn de woonkamer en zitplaats ingericht als een ‘De Stijl- environment’. De geometrische compositie op de muur springt is in het oog. Het bedekte waarschijnlijk een groot gedeelte van de muur, een scheidingsmuur tussen twee aanpalende woningen. Het was een streng geometrisch abstract werk, in de trant van ‘De Stijl-schilders’ en was niet te vergelijken met de muurschilderijen in Hoste's eigen huis te Sint-Michiels, de living van de woning van Drukkerij Geerardijn te Brugge en het interieur van 'Het Zwarte Huis’. Een ander kenmerk was de tegelvloer in geometrische patronen, telkens gelegd met tegels van een andere kleur. Dergelijke vloeren werden gelegd in andere woningen van Huib Hoste, zoals de vloer van de ‘Grote kamer’ in 'Het Zwarte Huis’.
Onlangs ontdekte familiefoto’s tonen de eetkamer en de zitplaats (‘salonnetje’ met piano) in het voorjaar van 1925 (afb. 5-7).(14) De foto’s verschaffen maar een zwak idee van het interieur. Voorde gelegenheid werd de tafel van de eetplaats verwijderd. De stoof, achteraan te zien, was nog in gebruik tot na Wereldoorlog II.
Op de foto’s van de zitplaats zat Lieve (°1911) aan de piano (afb. 6). Op de achterkant van de foto staat een opschrift: ‘Lieve 12 jaar’. Gezien zij in 1911 geboren is werd de foto genomen in 1923. Ook de oudste zoon, Reimond jr., 14 jaar, speelde er piano (afb.7). De piano zat vervat in een nis-meubel van Hoste met een kleine bibliotheek en zijn typische knooppunten, wel is waar nog rudimentair, waar vlakken en/of latten samenkomen (zie ook afb. 15). Dit is misschien een aanwijzing dat de inrichting van de eetplaats en zitplaats eerder werd gerealiseerd dan de 1ste verdieping. De klassieke ramen werden vervangen door vier verticale fabrieksramen.(15) De eetkamer en zitplaats hadden diverse kleuren, obligaat voor een ‘De Stijl-environment’. Dat vraagt wel enige verbeelding. Vader, zoon en dochter speelden samen pianowerken a quatre mains,(16)
2. Medisch bureau, ingericht door Victor Servranckx met meubels van Hoste
Het medisch bureau was een van de mooiste ‘De Stijl-environmenten’ in België. Het is zeer verschillend van het environment van Hoste. De ruimte was veel groter dan de foto’s laten vermoeden. Later werd het een living toen de eerste en tweede verdieping verbouwd werden tot huurappartementen.
Afb. 9-11, © Fonds Huib Hoste, Sint-Lukasarchief - Stichting CIVA Brussels.
Afb.12. V. Servranckx, opus 9,1922,’Rode rotatieve’ ©, Paris, Centre Pompidou
De ruimtelijke compositie bestond uit afwisselende horizontale en verticale zwarte lijnen. De lichtere lijnen waren in een warme kleur. (17) Het was waarschijnlijk een toon van oranje, zoals te zien in een schilderij van Victor Servranckx uit 1922 (afb. 12).
De meubels werden ontworpen door Huib Hoste: bureaumeubel, boekenrek, zetel en vooral het kleine theetafeltje met de prachtige knoopverbindingen. Het was bedekt met glas.(18) De kleuren werden gekozen door Servranckx. De wanden waren niet beschilderd maar voorzien van gestreept behangpapier.(19) De vloeren waren niet in een Hoste-patroon gelegd. Bijzonder was het theetafeltje, gemaakt door meubelmaker Hoste en beschilderd in het zwart door Servranckx. Karakteristiek voor Hoste zijn de prachtige knooppunten.(20)
Een halve eeuw later maakte de Franse kunstenaar Daniël Buren (°1938) des centaines d'oeuvres in situ qui soulignent, contrarient ou mettent en valeur les caractéristiques des lieux quH'accueillent.(21) Jan Hoet organiseerde een spraakmakende tentoonstelling in 1984 ‘Les chambres d’amis’. Opvallend was het interieur in strepen in blauwe verticale strepen voor het interieur van Anton & Annick Herbert. De gelijkenis met het ‘De Stijl-interieur’ van Servranckx in villa Gudrun is opvallend..(22)

Afb.14. Het Zwarte Huis
Afb. 1 5.Knooppunt van het zwarte theetafeltje.
Afb.13. H. Hoste en Servranckx t zwart theetafeltje, © P. B. Mattelaer
Bestemming van Villa Gudrun na ‘Het Zwarte Huis’
Villa Gudrun werd daarna grondig verbouwd. Zoals reeds vermeld werd muurtje tussen eet- en zitplaats afgebroken zodat de ruimte L-vormig werd. De verticale vensters werden vervangen door klassieke ramen. De eerste en ook de tweede verdieping ondergingen eveneens verbouwingen. De woning werd verhuurd aan de heer Charles D’hont tot het einde van het jaar 1940..(23) Na het overlijden van Dr. De Beir in 1945 verhuisde zijn weduwe met zoon Stefaan naar Villa Gudrun. Mevrouw De Beir overleed in 1971 en haar zoon Stefaan in 2002. Daarna werd de ‘Villa’ afgebroken.
Bijlage
Het artistiek partnerschap van architect Huib Hoste en kunstschilder Victor Servranckx

Huib Hoste en Victor Servranckx hebben in de jaren 1920 samengewerkt in drie realisaties:
- Het medisch bureau in Villa Gudrun (afb. 9-11) kan worden beschouwd als een voorbode van ‘Het Zwarte Huis’.
- Het Zwarte Huis (afb. 14), de ‘woonst’ van Dr. De Beir’ is een gezamenlijk concept van Hoste en Servranckx. ‘De architect maakte het ontwerp en de plannen en de schilder stelde de kleuren voor van de gevel en van de hal. Het Zwarte huis was het eerste teken van een radicaal modernisme in België. Kleur, meubels en muren vormen één plastisch geordend geheel. De woning is een manifest van het wonen: rekening houdend met de praktische eisen van het dagelijkse leven ontwerp Hoste een doelmatige inrichting. Die doelmatigheid (functionaliteit) is het vertrekpunt van zijn architectuur en daaruit ontstaat en groeit, mede door de samenwerking met Victor Servranckx, een kunstenaar die gelijkgericht is, de schoonheid van die architectuur. Bouwen en dus architectuur betekenen voor Hoste “ruimtescheppen”.(24) De kleuren van de gevel, zwart en oranje en ook deze van de hal en de trapzaal werden gekozen door Servranckx. De materialen van de gevel werden gekozen door Hoste en Dr. De Beir. Vooral de gevel in zwarte teer was een herinnering aan de geteerde boerderijen die ze in Nederland hadden gezien. De hal is grotendeels gekleurd door Servranckx. Hoste schreef hem in oktober 1925: ‘Hij (Dr. De Beir) heeft me later dan gezegd dat ik zelf zou kunnen kleuren aangeven voor de hall, waarop ik geantwoord heb dat ik het niet deed, aangezien jij, akkoord met zijn vrouw, aan de deuren enz. begonnen waart'.(25) Tijdens de vooropening van de tentoonstelling Servranckx in het museum van Elsene in 1965 had een gesprek plaats tussen de schilder en mijzelf. Servranckx vond het jammer dat hij zijn ontwerp niet had kunnen uitvoeren in ‘Het Zwarte Huis'. In dezelfde brief van Hoste van 4 oktober 1925 staat geschreven: ‘Na ons bezoek te Knocke heeft De Beir me opgebeld dat je prijs voor te hall hem te hoog was’. Waarschijnlijk heeft mevrouw De Beir dat geweigerd. Een mogelijke hypothese was een ‘De Stijl environment’ in de inkomhal. Het blijft echter een onopgelost mysterie.
- Het Bureau-fumoir wordt in Parijs tentoongesteld op de ‘Exposition internationale des Arts décoratifs et industriels modernes’ (april-oktober 1925), de eerste internationale tentoonstelling na Wereldoorlog I. Paviljoenen worden in openlucht opgesteld, zoals die van de bekende architecten als Joseph Hoffman (Oostenrijk), Robert Mallet-Stevens (Frankrijk), Le Corbusier,...en staan open voor het publiek. ‘Het Bureau-fumoir’ werd opgesteld in de Galerie des ensembles de mobiliers op de Esplanade des Invalides. Het kreeg een gouden medaille. Ook de modernist Karel Maes, een kennis van Dr. De Beir, stuurde een inzending. Ironisch genoeg, werd de inzending van Van Doesburg, die toen nochtans dichtbij Parijs woonde, niet aanvaard.
Het artistiek partnerschap van architect Huib Hoste en kunstschilder Victor Servranckx eindigde met de publicatie van het tijdschrift ‘OPBOUWEN’ in 1928.
Voetnoten
- 'Geboorte van de kinderen van Dr. De Beir: Reimond: 5 mei 1910, Westkapelle; Godelieve: 27 juli 1911, Knokke (in het medisch kabinet); Stefaan: 13 maart 1917, Soesterberg. De 3 volgende kinderen werden in Villa Gudrun te Knokke geboren: Frank: 1 juni 1914; Emmanuel: 29 juni 1919; Paul: 18 april 1922; Patrick: 17 feb 1924. Willem werd op 17 september 1927 in het Zwarte Huis geboren.
- De bouwvergunning werd door Danny Lannoy opgezocht. De auteur is hem daar bijzonder dankbaar voor.
- Statistisch wordt een kind geboren twee jaar na de bouw van een woning door een jong koppel.
- Het toneelstuk was toen een inspirerend symbool van de katholieke Vlaamse beweging.
- De bouwvergunning voor de ‘Woning De Beir' werd pas toegekend in het voorjaar van 1925. Dank aan Notaris Sophie D’Hoosche. De woning werd door de Knokkenaren in het West-Vlaams ‘Het Zwart Huis’ genoemd De Nederlandse benaming ‘Het Zwarte Huis’ is correcter.
- P.B.Mattelaer, Dokter Reimond De Beir, arts te Knokke (1879-1945) Cnoc is ier, jg 2003, deel I, p.3-4.
- Mevrouw L. Mattelaer-De Beir (°1911) herinnerde zich op latere leeftijd nog levendig de fietstocht met de familie Hoste en het bijzondere huis. P.B.Mattelaer, Dokter Reimond De Beir, arts te Knokke (1879-1945), deel I - Jeugd, Westkapelle en Holland (1879-1919), Cnoc is ier, voetnoot 44.
- Nancy J. Troy, professor in Art, Stanford University, The De Stijl Environment. MIT Press, 1983.
- Lieve De Beir, Levensverhaal. Herinneringen aan vervlogen tijden, s.d.; de auteur heeft de plaats goed gekend want hij ging graag zijn grootmoeder bezoeken die daar als weduwe gewoond heeft.
- Het woord 'Herenkamer’ is niet echt toepasselijk. Het woord werd gebruikt door Peter Pauwels in zijn voorwoord van de tentoonstelling Huib Hoste en zijn tijdgenoten in 'Het Zwarte Huis’, Knokke, Zwarte Huis, november 2018 - april 2019.
- "Huib Hoste was een begaafde meubelontwerper. Het ‘Design Museum Gent’ bezit enkele meubelen van Hoste, afkomstig uit de woning Geerardijn te Brugge.
- Gelukkig behoort het atelier van Peeters sedert 2009 tot het beschermd onroerend erfgoed in Vlaanderen. De Meulemeester, De Interieurs van Jan Cockx, Pogen, 2e jg., nr. 3, p. 87-90.
- De auteur was zeer vertrouwd met de living. Toen hij op kostschool was in de jaren 1950, verbleef hij op zaterdagnamiddag bij zijn lieve grootmoeder omdat zijn ouders consultaties hielden op zaterdag.
- Bovenaan, van I. naar r.: Reimond jr., Dr. R. De Beir. Op de tweede rij: Stefaan, mevrouw De Beir, Lieve, Emmanuel en vooraan Paul (op schoot).
- De grote witte ramen van de ‘Grote Kamer’ van ‘Het Zwarte huis’ zijn eveneens fabrieksramen.
- Archief Diederik De Beir. Lieve De Beir (Mattelaer), Uit vervlogen tijden.
- Lieve, geboren in 1911 en Frank, geboren in 1914, spraken altijd over ‘warme tonen’.
- 'theetafeltje en glas, verzameling P. B. Mattelaer. Van dit theetafeltje bestaat een gekleurde kopie, verzameling Ann Verdonck.
- Ann Verdonck, De abstracte kunst van Victor Servranckx: van tweedimensionaal canvas naar driedimensionale interventies, tentoonstelling Victor Servranckx, De jaren twintig, p.61 e.v.
- Hoste was geïnspireerd door de beroemde stoel van G.Rietveld, een lid van ‘De Stijl’. Voor meubelkunst van Hoste: cfr. Sabien Degroote ,Evolutie en stijlkenmerken.Meubelkunst Huib Hoste (1881-1957). Van traditioneel meubel tot industrieel serieproduct? Onuitgegeven Licentiaatsverhandeling UG, 2006-2007.
- 'Tentoonstelling Les Chambres d'Amis, 1986. De vader van de heer Anton Herbert, Tony Herbert samen met Paul Beeckman, toen studenten aan de KULeuven, werden door Dr. R. De Beir ontvangen in het Noordzeehotel van Huib Hoste, in mei 1924 na het ‘Consilium abeundi’ van de KULeuven. P. Mattelaer, De Nieuwe Beelding en de Gemeenschapskunst 1919-1926, Biografie van Dr. R. De Beir, deel II, Cnoc is ier, 2003, tijdschrift 40, p.11.
- Jan Hoet (1936 -2014) promoveerde als kunsthistoricus met een thesis over Victor Servranckx.
- Volgens een akte verleden bij notaris de Gheldere op 2 december 1940. Archief Diederik De Beir.
- Tekst van architect J.Vandenbreeden.
- Brief van Huib Hoste aan Victor Servranckx d.d. 4-10-1925, gepubliceerd in: Marianne Lievens, Huib Hoste en het Vlaamse modernisme. De dokterswoning De Beir te Knokke, 1924. Onuitgegeven eindverhandeling, 1991-1992.
